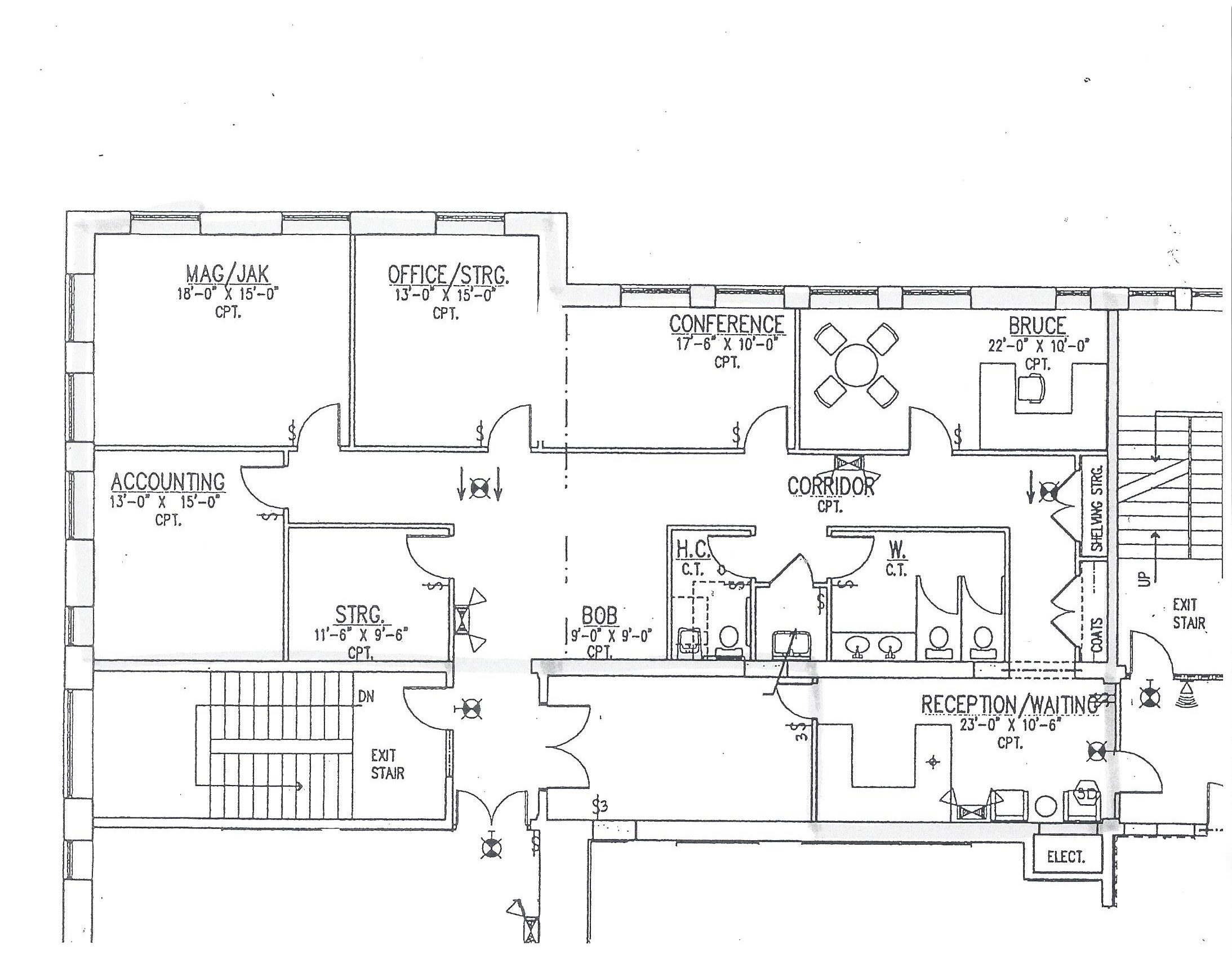
Floor Plans: 1